Description

168 m²
2336 m²
5 pièces
3 chambres
2 garages
1 sdb

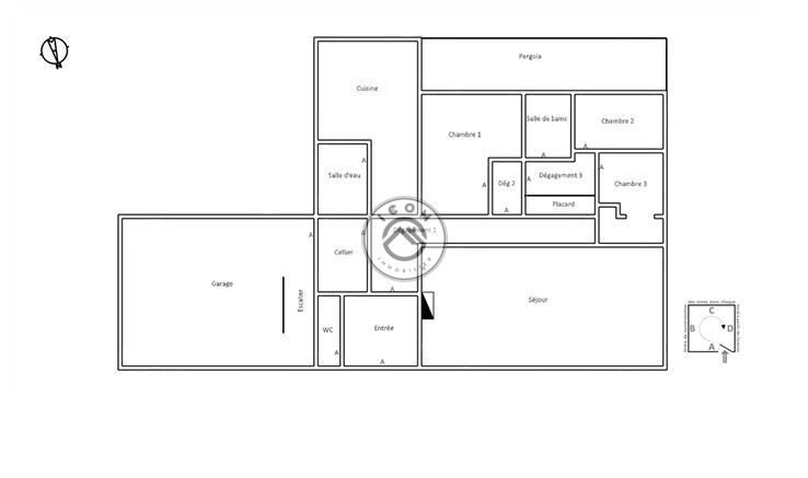
Sur la commune de Colleret, découvrez ce plain-pied d’environ 168 m², idéal pour une vie de famille au calme.

Il se compose d’une entrée, d’une belle pièce de vie avec cheminée, de 3 chambres, d’une cuisine, d’une salle d’eau et d’une salle de bain, ainsi que 2 WC.

Vous serez séduits par son beau potentiel, offrant la possibilité de créer un intérieur à votre image.
Le tout sur un beau terrain de 2 336 m² avec grand garage.

À visiter sans tarder !

Les informations sur les risques auxquels ce bien est exposé sont disponibles sur le site Géorisques : www.georisques.gouv.fr

Caractéristiques

Honoraires charge
mandant
Type
maison
État général
à rénover
Environnement
village
Disponibilité
à l'acte
Construction
1945
Surface terrain
2336 m²
Surface habitable
168 m²
Nb. chambres
3
Nb. salles de bains
1
Nb. salles d'eau
1
Nb. cuisines
1
Nb. garages
2
Nb. parking
1
Types de cuisine
équipement de base
Chauffages
bois et gaz
Terrasse
Cheminée
Fosse septique (ANC)

Télécharger le barème des honoraires

Localisation Colleret, 59680

Tous les outils pour vos projets immobiliers

Tous les outils pour vos projets immobiliers

Découvrez Mon CID,

mon compagnon immobilier digital

Accès à toutes les ventes immobilières,

boussole à réalité augmentée,

tester le débit de votre futur achat,

calculatrice de mensualité, etc.

Application mobile disponible sur

Performance énergétique

logement extrêmement performant
bâtiment performantpassoire énergétique
  • A< 70
  • B70 - 110
  • C110 - 180
  • D180 - 250244kWh/m².an37 *kg CO2/m².an
  • E250 - 330
  • F330 - 420
  • G> 420
logement extrêmement peu performant

* Dont émissions de gaz à effet de serre

peu d'émissions de CO2
  • A< 6
  • B6 - 11
  • C11 - 30
  • D30 - 5037kg CO2/m².an
  • E50 - 70
  • F70 - 100
  • G> 100
émissions de CO2 très importantes

Estimation des dépenses annuelles d'énergie pour un usage standard

entre 2 900 € et 3 980 € / an *

* Prix moyens des énergies indexés pour l'année 2021 (abonnement compris).

Simulation de prêt

(10% du prix du bien)
%
(taux moyen hors assurance)

Montant estimé

662 € / mois *

* Calculs effectués sur la base d'un prêt à taux fixe de 3,43% sur une durée de 25 ans avec un apport de 10% et hors assurance. Le coût de l'assurance de prêt dépend du capital assuré, de votre âge, de la durée du prêt, du taux d'intérêt du prêt, de votre questionnaire de santé et/ou médical, et de votre profession. Les calculs et solutions indiqués ne revêtent aucun caractère contractuel et ne sont en aucun cas une offre de prêt. Seuls les banques et organismes de financement sont habilités à accorder un financement. Pour tout crédit immobilier, vous êtes protégés par un délai de réflexion de 10 jours. Aucun versement de quelque nature que ce soit ne peut être exigé d'un particulier avant l'obtention d'un ou de plusieurs prêts d'argent. L'achat est subordonné à l'obtention du prêt. S'il n'est pas obtenu, le vendeur doit rembourser les sommes versées. Un crédit vous engage et doit être remboursé. Vérifiez vos capacités de remboursement avant de vous engager.

Cette annonce vous intéresse ?

Prenez contact avec Noémie Fache-Delaporte (EI)

Noémie Fache-Delaporte

Agent commercial en immobilier immatriculé au RSAC de VALENCIENNES sous le n°894681857


ou

Autres annonces à découvrir...

Logo ICOM IMMOBILIER

Coordonnées du siège

ICOM IMMOBILIER
34 Place du Général de Gaulle, Bureau 3
Lille, 59000 (France)
contact@icom-immobilier.fr

Chaque agent du réseau ICOM IMMOBILIER est juridiquement et financièrement indépendant.

Filtres SVG
Logo ICOM IMMOBILIER Logo ICOM IMMOBILIER ICOM IMMOBILIER

En poursuivant votre navigation sur ce site, vous acceptez l'utilisation de Cookies pour mesurer l'audience de notre site.

En savoir plus