Description

80 m²
399 m²
3 pièces
2 chambres
piscine

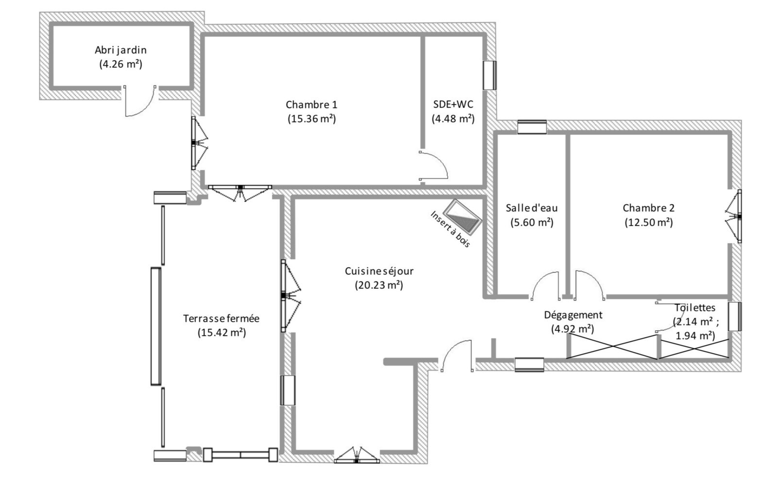
Dans un cadre paisible de la zone résidentielle de Linguizzetta, ce charmant plain individuel de 80 m² construit en 1997 vous offre un véritable cocon familial où il fait bon vivre. Idéalement située dans le secteur Bravone, elle bénéficie d’un accès direct à la route territoriale et se trouve à seulement une minute à pied de l’école, un atout précieux pour un jeune couple en quête de praticité et de sérénité.

Cette maison en très bon état repose sur un terrain clos de 399 m², sans vis-à-vis, qui invite à la détente et à la convivialité. L’allée privative vous mène à deux places de parking sécurisées, tandis que le jardin soigneusement aménagé accueille une piscine hors sol de 14 m², parfaite pour profiter des beaux jours en toute intimité. Une véranda lumineuse prolonge agréablement les espaces de vie, offrant un lieu chaleureux pour se retrouver en famille ou entre amis.

À l’intérieur, la maison se compose de trois pièces principales, dont deux chambres confortables, idéales pour aménager un coin nuit paisible ou un bureau selon vos besoins. Deux salles d’eau et deux WC apportent un confort appréciable au quotidien. La cuisine équipée, fonctionnelle et conviviale, s’ouvre sur un séjour agrémenté d’une cheminée, qui promet des moments chaleureux lors des soirées plus fraîches.

Les prestations complètent ce tableau harmonieux : chauffage électrique associé à une climatisation réversible pour un confort optimal en toute saison, mobilier inclus pour un emménagement facilité, ainsi qu’un chalet de jardin et un atelier de bricolage, parfaits pour les loisirs ou le rangement. La maison orientée à l’est invite à savourer les matins en douceur, baignée par la lumière naturelle.

Cette maison allie confort, fonctionnalité et bien-être dans un environnement calme et sécurisé, prêt à accueillir votre projet de vie. N’attendez plus pour venir découvrir ce lieu où chaque détail a été pensé pour votre sérénité et votre bonheur. Une visite s’impose pour ressentir tout le charme et le potentiel de cette belle opportunité à Linguizzetta.

Les informations sur les risques auxquels ce bien est exposé sont disponibles sur le site Géorisques : www.georisques.gouv.fr

Caractéristiques

Prix hors honoraires d'agence
275 000,00 €
Honoraires charge
acquéreur
Pourcentage à la charge de l'acquéreur
3,64%
Type
maison
État général
très bon
Environnement
zone Résidentielle
Orientation
Est
Disponibilité
à l'acte
Construction
1997
Surface terrain
399 m²
Surface habitable
80 m²
Nb. chambres
2
Nb. salles d'eau
2
Nb. cuisines
1
Nb. parking
2
Types de cuisine
équipée
Chauffages
électricité et clim réversible
Meublé
Parking privé
Terrasse
Piscine
Cheminée
Tout à l'égout
Taxe foncière
628,00 €

Télécharger le barème des honoraires

Tous les outils pour vos projets immobiliers

Tous les outils pour vos projets immobiliers

Découvrez Mon CID,

mon compagnon immobilier digital

Accès à toutes les ventes immobilières,

boussole à réalité augmentée,

tester le débit de votre futur achat,

calculatrice de mensualité, etc.

Application mobile disponible sur

Performance énergétique

logement extrêmement performant
bâtiment performantpassoire énergétique
  • A< 70
  • B70 - 110
  • C110 - 180
  • D180 - 250233kWh/m².an8 *kg CO2/m².an
  • E250 - 330
  • F330 - 420
  • G> 420
logement extrêmement peu performant

* Dont émissions de gaz à effet de serre

peu d'émissions de CO2
  • A< 6
  • B6 - 118kg CO2/m².an
  • C11 - 30
  • D30 - 50
  • E50 - 70
  • F70 - 100
  • G> 100
émissions de CO2 très importantes

Estimation des dépenses annuelles d'énergie pour un usage standard

entre 930 € et 1 320 € / an *

* Prix moyens des énergies indexés pour l'année 2021 (abonnement compris).

Simulation de prêt

(10% du prix du bien)
%
(taux moyen hors assurance)

Montant estimé

1274 € / mois *

* Calculs effectués sur la base d'un prêt à taux fixe de 3,43% sur une durée de 25 ans avec un apport de 10% et hors assurance. Le coût de l'assurance de prêt dépend du capital assuré, de votre âge, de la durée du prêt, du taux d'intérêt du prêt, de votre questionnaire de santé et/ou médical, et de votre profession. Les calculs et solutions indiqués ne revêtent aucun caractère contractuel et ne sont en aucun cas une offre de prêt. Seuls les banques et organismes de financement sont habilités à accorder un financement. Pour tout crédit immobilier, vous êtes protégés par un délai de réflexion de 10 jours. Aucun versement de quelque nature que ce soit ne peut être exigé d'un particulier avant l'obtention d'un ou de plusieurs prêts d'argent. L'achat est subordonné à l'obtention du prêt. S'il n'est pas obtenu, le vendeur doit rembourser les sommes versées. Un crédit vous engage et doit être remboursé. Vérifiez vos capacités de remboursement avant de vous engager.

Cette annonce vous intéresse ?

Prenez contact avec Cyrièle Chesneau (EI)

Cyrièle Chesneau

Agent commercial en immobilier immatriculé au RSAC de VALENCIENNES sous le n°851566232


ou

Autres annonces à découvrir...

Logo ICOM IMMOBILIER

Coordonnées du siège

ICOM IMMOBILIER
34 Place du Général de Gaulle, Bureau 3
Lille, 59000 (France)
contact@icom-immobilier.fr

Chaque agent du réseau ICOM IMMOBILIER est juridiquement et financièrement indépendant.

Filtres SVG
Logo ICOM IMMOBILIER Logo ICOM IMMOBILIER ICOM IMMOBILIER

En poursuivant votre navigation sur ce site, vous acceptez l'utilisation de Cookies pour mesurer l'audience de notre site.

En savoir plus